Toggle navigation
위 파트너스
COMPANY
PROJECTS
CONTACT US
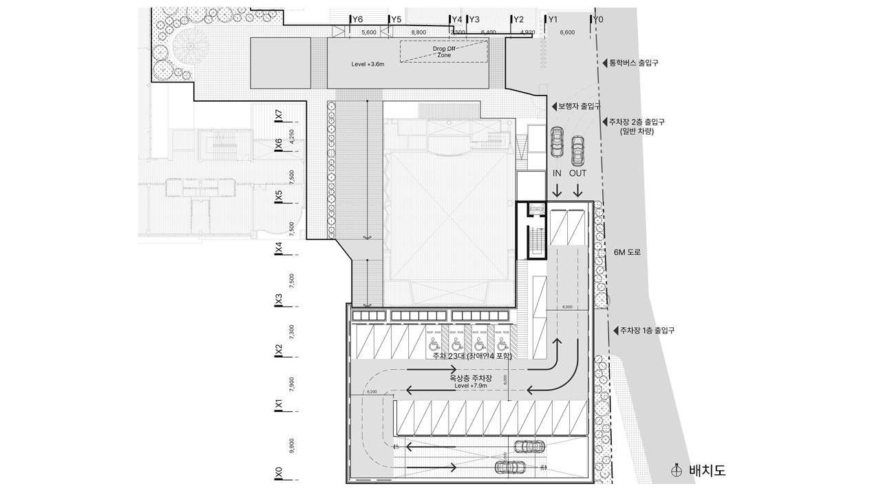
안양해솔학교 주차공간조성사업 설계공모 (입상)
Previous
Next
위치
경기도 안양시 만안구 석수동 1-3
준공연도
.
대지면적
13,896 ㎡
건축면적
1,049.8 ㎡
연면적
1,942.87 ㎡
구조
Reinforced Concrete, Steel
외부마감
Brick, Al panel, Al sheet, Metal fabric
내부마감
Paint on gypsum board, Wallpaper
리스트 보기