경기도 광명시 철산동 558번지
경기도 과천시 갈현동 41번지 일원
경기도 포천시 원모루로 40
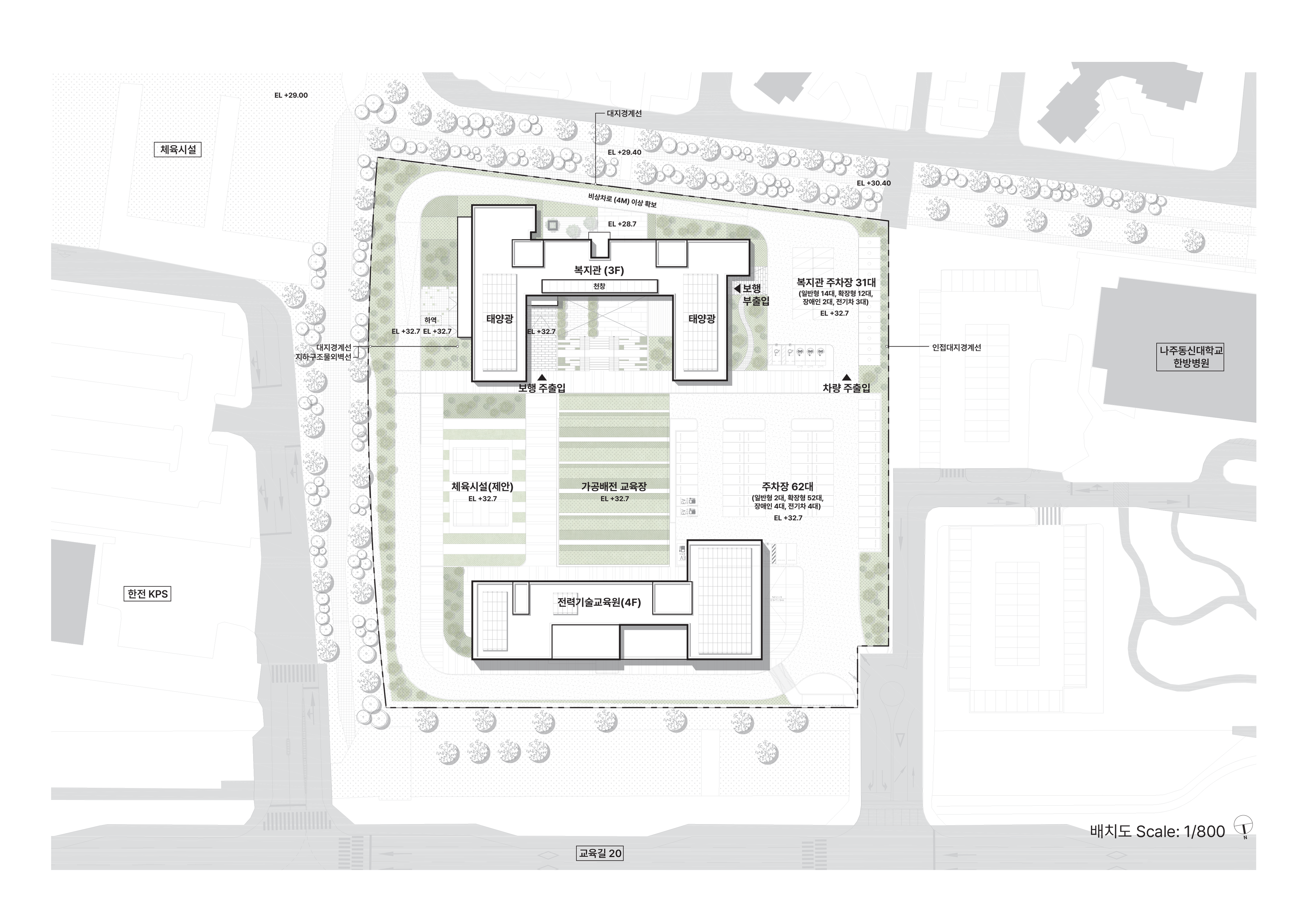
전남 나주시 빛가람동 938
경기도 양평군 용문면 용문로 437
서울특별시 서초구 반포대로 13길 43
경기도 수원시 권선구 금곡로73번길 60
경기도 안양시 만안구 석수동 1-3
경기도 남양주시 퇴계원읍 퇴계원리 271-6
서울특별시 양천구 목동서로 31
경상북도 영주시 풍기웁 삼가리 306-12번지 외 7필지
경기도 포천시 일동면 기산리 96-59외 1필지
서울특별시 강남구 역삼동
광주광역시 서구 세하동
경기도 과천시 과천지식정보타운 공공청사 3
경기도 의정부시 녹양동
경상남도 밀양시 산외면
서울특별시 송파구 풍납동
경기도 수원시 고색동
경기도 화성시 서신면
경기도 과천시 과천동
광주광역시 서구 마륵동
인천광역시 계양구 계산동
서울시 서초구 반포동
제주시 한림읍
서울특별시 중구 황학동
경기도 과천시 문원동
서울특별시 강남구 논현동
서울특별시 관악구 신림동
서울특별시 종로구
서울특별시 강동구 천호동
강원도 홍천군 동면
서울특별시 중구 충무로 1가
경기도 화성시 봉담읍
전라남도 함평군 해보면
전라남도 무안군 일로읍
전라남도 고흥군 동강면
전라북도 군산시 나운동
전라북도 김제시 만경읍
경기도 성남시
전라북도 전주시 완산구
전라남도 장성군 북이면
전라남도 장흥군 장흥읍
서울특별시 동작구
전라남도 장성군 장성읍
경기도 광주시 목현동
서울시 서초구 서초동
경기도 안성시 공도읍
서울시 강남구 수서동
서울시 강남구 역삼동
서울시 성동구 행당동
서울시 용산구 이촌동
서울시 관악구 신림동
서울시
서울시 송파구 방이동
서울시 서초구 우면동