Toggle navigation
위 파트너스
COMPANY
PROJECTS
CONTACT US
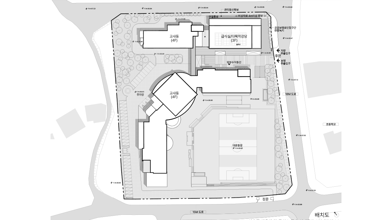
상촌중 체육관 및 급식실 증축 설계공모 (입상)
Previous
Next
위치
경기도 수원시 권선구 금곡로73번길 60
준공연도
.
대지면적
15,189.90 ㎡
건축면적
. ㎡
연면적
2,000 ㎡
구조
Reinforced Concrete, Steel
외부마감
Brick, Low-Emissivity Glass, Al. panel, Terracotta panel
내부마감
Paint on gypsum board, Wallpaper
리스트 보기