Toggle navigation
위 파트너스
COMPANY
PROJECTS
CONTACT US
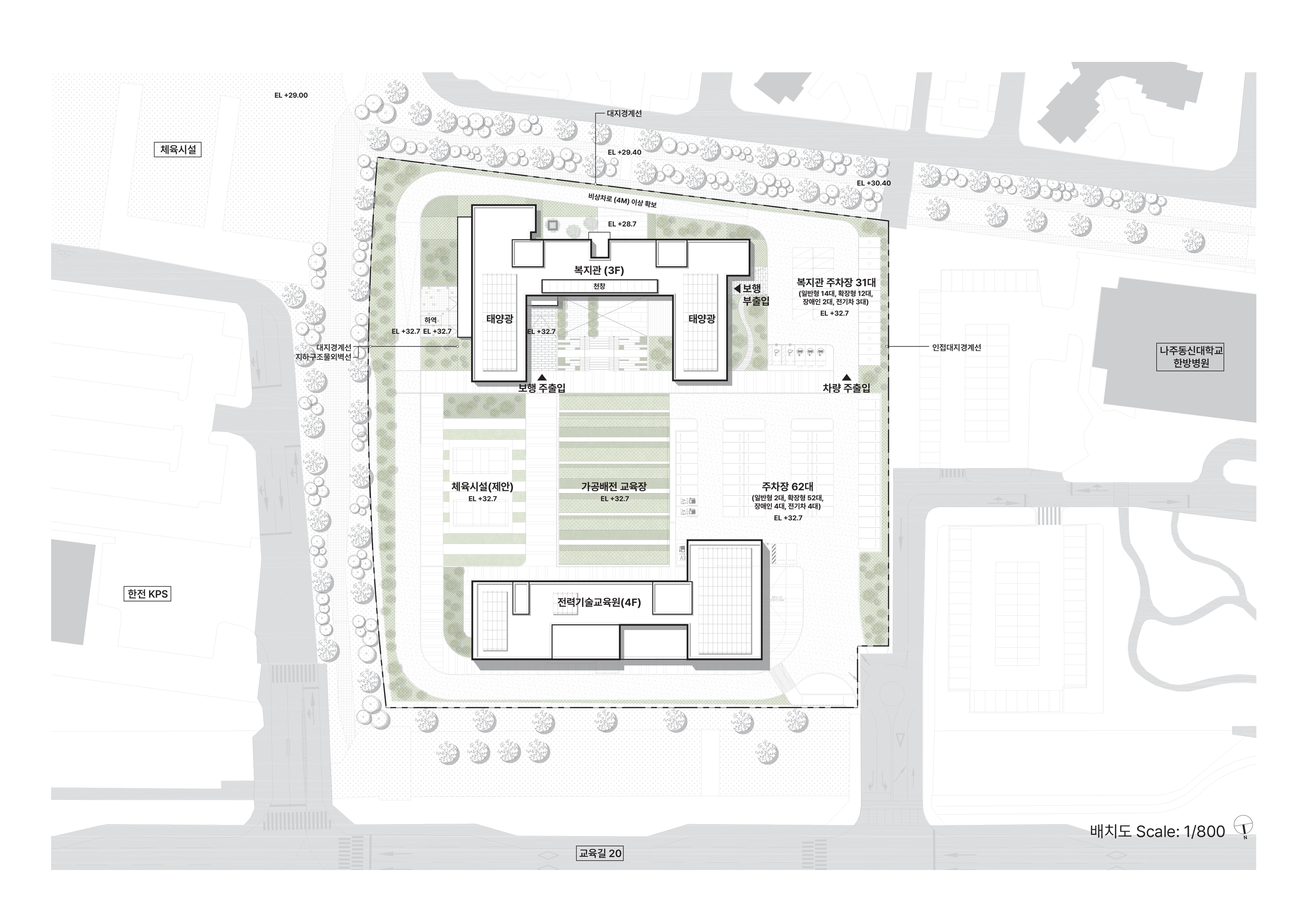
한국폴리텍대학 전력기술교육원 복지관 증축 공사 설계공모 (입상)
Previous
Next
위치
전남 나주시 빛가람동 938
준공연도
.
대지면적
15,764.3 ㎡
건축면적
1,638.74 ㎡
연면적
4,389.91 ㎡
구조
Reinforced Concrete
외부마감
Brick, Low-E triple-pane glass, Bush hammered granite, Al. panel
내부마감
Paint on gypsum board, Wallpaper
리스트 보기