Toggle navigation
위 파트너스
COMPANY
PROJECTS
CONTACT US
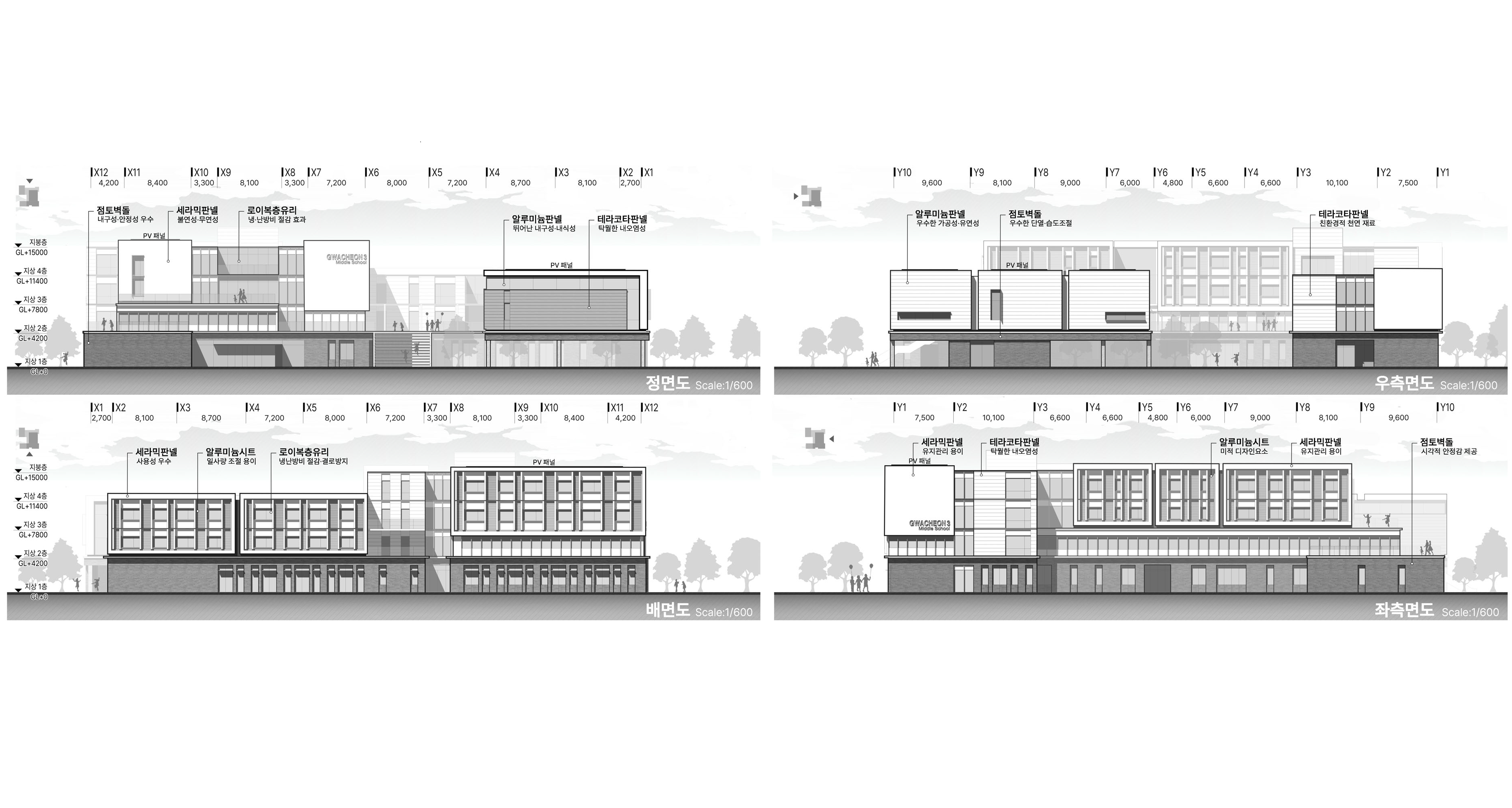
과천지식3중 신축 설계공모 (입상)
Previous
Next
위치
경기도 과천시 갈현동 41번지 일원
준공연도
.
대지면적
8,000 ㎡
건축면적
3,891.82 ㎡
연면적
9,496.39 ㎡
구조
Reinforced Concrete
외부마감
Brick, Low-Emissivity Glass, Ceramic panel, Terracotta panel, Al. panel, Al. sheet
내부마감
Paint on gypsum board, Wallpapaer
리스트 보기