Toggle navigation
위 파트너스
COMPANY
PROJECTS
CONTACT US
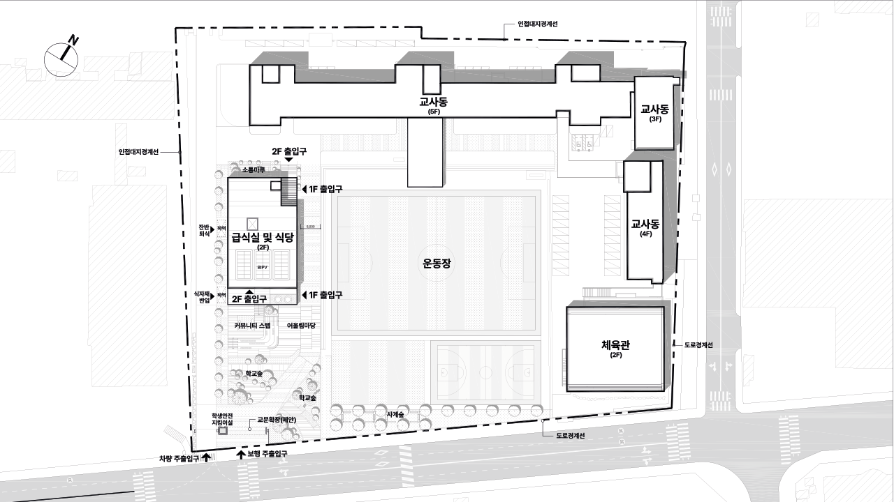
철산중 급식실 및 식당 증축 설계공모 (당선)
Previous
Next
위치
경기도 광명시 철산동 558번지
준공연도
.
대지면적
18,787.40 ㎡
건축면적
983.78 ㎡
연면적
1,341.00 ㎡
구조
Reinforced Concrete
외부마감
Brick, Low-Emissivity Glass, Al. panel, Al. louver
내부마감
Paint on gypsum board, Wallpapaer
리스트 보기