Toggle navigation
위 파트너스
COMPANY
PROJECTS
CONTACT US
일동고 교직원 공동사택 증축 설계공모 (입상)
Previous
Next
위치
경기도 포천시 일동면 기산리 96-59외 1필지
준공연도
.
대지면적
36,765 ㎡
건축면적
297.23 ㎡
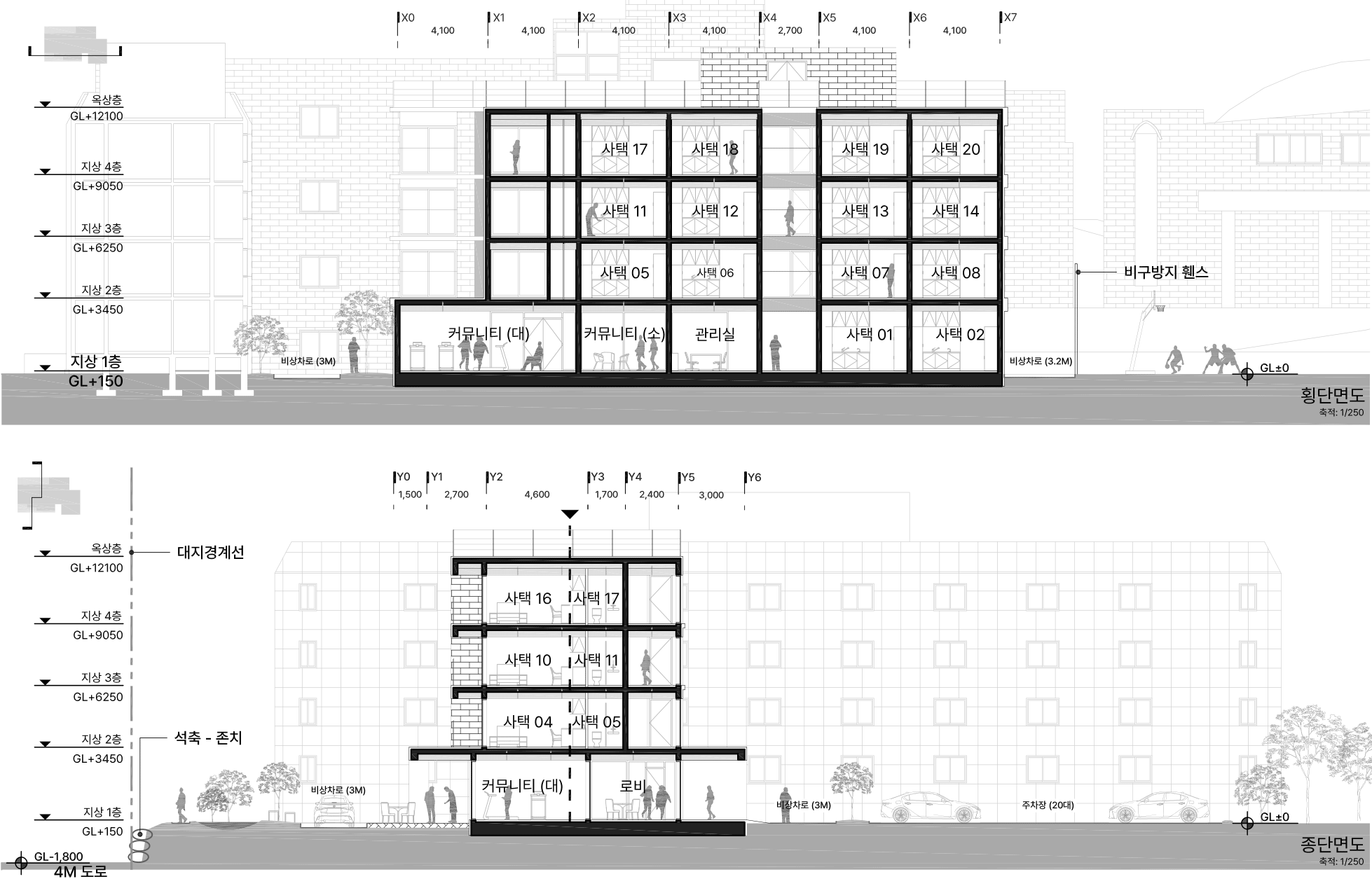
연면적
1,065.04 ㎡
구조
Reinforced Concrete
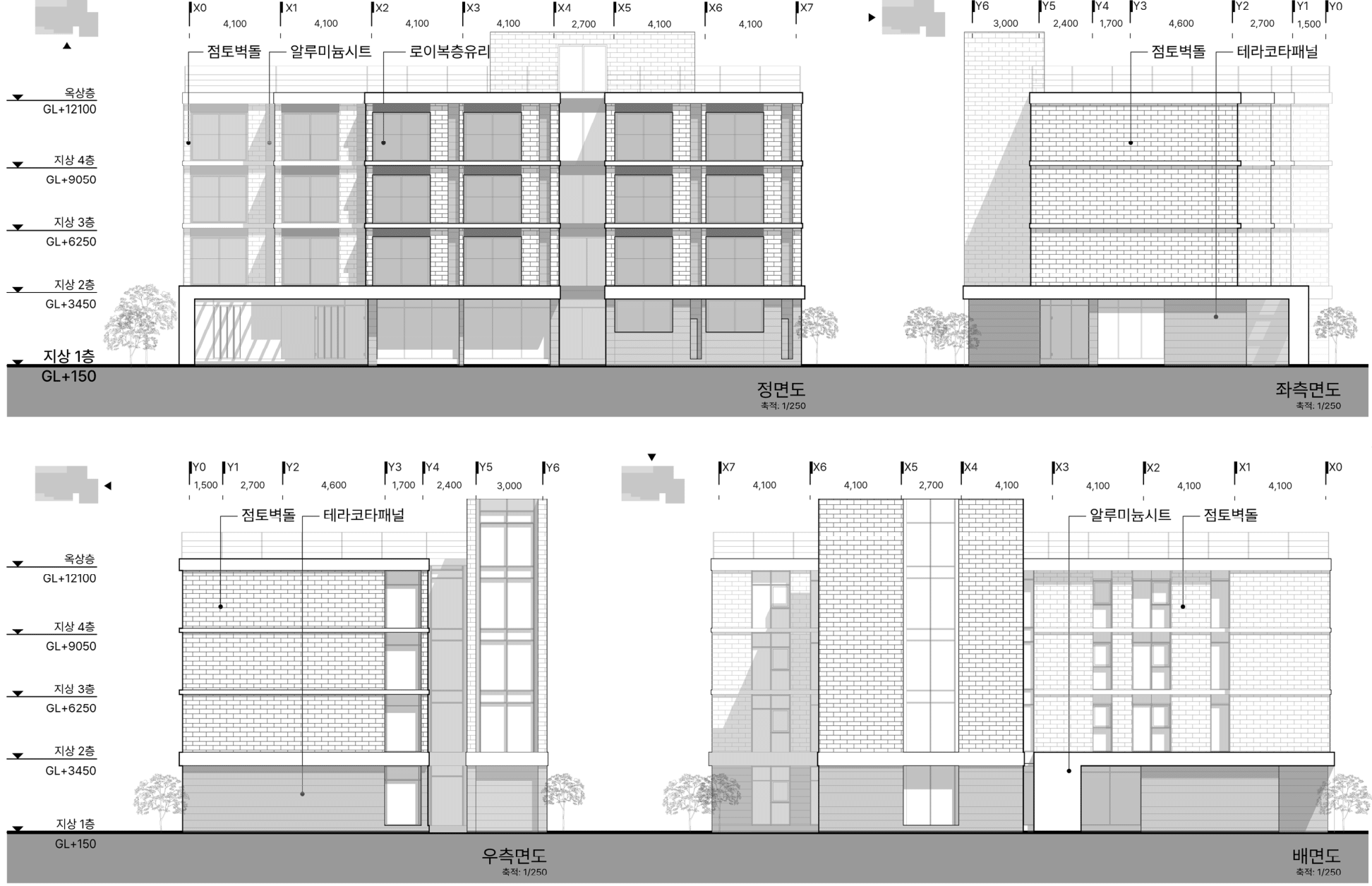
외부마감
Exposed concrete, Terracotta panel, Al. sheet
내부마감
Paint on gypsum board, Wallpaper
리스트 보기